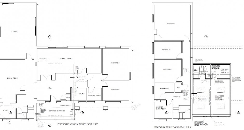
Proposed first floor extension with glazed gable at rear forming master bedroom and ensuite. Covered entrance formed at front of property underneath part of proposed extension
Proposed first floor extension with glazed gable at rear forming master bedroom and ensuite. Covered entrance formed at front of property underneath part of proposed extension